Week 10 – Public & Private Space Development
28/03/2024
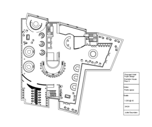
In week 10 I continued the development of my hotel design. I mainly focused on developing my foyer design. I made a few changes to the floor plan by altering the ‘study pods’ I designed. I made them smaller because they were too big before. And I also added outer timber panels outside the ‘meeting’ area I designed. I also thought about the use of the outdoor terrace so I added outdoor seating. I also had to make some alterations to the doors leading out onto the outdoor terrace of the fourth floor in order to make them more accurate and fit into the building better.
Floor 4 foyer developments floor plan:

After working predominantly developing my foyer floor plan in auto cad I then started to used sketch-up to help with the development of my public space. Using sketch-up allowed me to get a 3d sense of the foyer space as well as the functionality of the space. I found using sketch-up a really helpful tool to develop my designs and to experiment with colours and materials. I used sketch-up to experiment with colours and textures for the bar In the foyer space. I also added in furniture into the model to get a sense of how it would look in the space. I knew I wanted to have a similar colour scheme in the foyer as the hotel rooms because I wanted the colours to be consistent so the ability to see how these looked in sketch-up was a really useful design tool.
Sketch-up model image showing foyer design (fourth floor):

After developing a 3d model I then created a line drawing in auto-cad of a perspective view of one part of the hotel foyer. I did this in order to create a perspective collage including the colours and materials I wanted to use In the hotel foyer. The line drawing was preparation for the base of my perspective collage views of the foyer to use in photoshop.
Floor 4 hotel design perspective view line drawing:


