Week 12: Places Please – Final Artist Identification and Exhibition Design.
Introduction
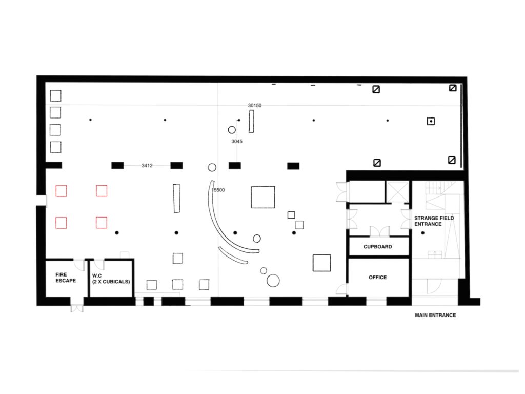
After experimenting with multiple exhibition layout designs, I have developed an order of artists that I believe will allow the audience to experience my intended exhibition narrative. In initial iterations I investigated using temporary walls to hang work. As seen in the image below (Figure 1.), this would help to divide the space into clear sections and provide the audience with a clear linear succession of art pieces to engage with, whilst providing a wall hanging space (Strange Field is a protected building so walls cannot be damaged in the installation or deinstallation of artwork). However, I ultimately decided against this. Firstly, I selected this space specifically for its non-white cube aesthetic and have previously written about how white cube spaces are ocular centric, which restricts the conceptual, and therefore ethical, accessibility of the space. Due to pricing and limitations of feasibility, temporary walls would likely be white and square, creating an appearance that may compromise the conceptual content of the exhibition.

Figure 1. Initial Exhibition Design
Secondly, the imposition of walls would create clear, and perhaps contrived or unnecessary divisions between the artworks, forming an exhibition experience that is disjointed. I reflected on what I observed at Talbot Rice’s Trading Zone exhibition, and the ways that Keziah Greenwood used standing modes of display, such as lighting stands or plinths, to create a subtle separation of space. Hence, in my latest iteration of a floor plan, I have positioned artworks and display features in tandem with the interior support architecture to subtly direct the audience around the exhibition, whilst also creating opportunities for exploration outside of a prescribed route. I have approached the design with the ambition of framing the space, rather than imposing structures on it.
Further, without walls, the viewer will be able to see the majority of the space from any one point in the room. I believe that this will reinforce the theme of Friction, as a variety of narratives will be brought together, gaining a visual closeness depending on where the viewer stands in the room, allowing for a dialogue to emerge between a wider variety of pieces than would be possible in a more conventional gallery display, embracing the user’s agency as a maker of meaning.
Within the exhibition design the curatorial theme ‘Weird’ will be embraced for its etymological root old English word ‘Wyrd’ meaning predetermined or fated. Pieces will be arranged to achieve an aesthetic that could be associated with destiny or rituals, embracing the use of symmetry and careful and detailed arrangement. Additionally, by alluding to fate and destiny as concepts that relate to the unfolding of events in time, the small arrangements of pieces will interact with the overall exhibition narrative which is reliant on individual artist practices expressing ecological past, futures, and present.
In the following section I will discuss the artist’s work, how it will be displayed in the space, and the ways in which it will contribute to an exhibition narrative and my exhibition goal: to make an audience aware of their place within ecological time and activate them to their own capabilities to work with nature to create the future. Though the following is divided into sections, this is strictly for organisational purposes and will not be strictly delineated in the gallery space.
Section 1: Past
Charlotte Alexander
Starting off the exhibition I have selected the work of Charlotte Alexander, who uses a personal archive of natural resources that correspond both to a sense of beyond-human deep-time, and personal histories. By positioning work that is intended to make hard to conceptualise ideas tangible and understandable through the point of a self-referential past, this piece will draw in the audience and subtly direct them to the form of thinking that allows for more abstract concepts to be displayed in following artworks with a reduced risk of participant disengagement. When discussing techniques for audience engagement Dr Julie Louise Bacon suggested the same method of activation.
Originally, I intended Alexander to work with the Glasgow based artist Ilana Halperin, who works with similar concepts and materials, proposing a mentorship between mid-career and early-career artists. Based on her CV, I had initially identified Halperin as an artist who could feasibly be included in this project, however, updated information has revealed that she has recently only been involved in a variety of institutional group shows, such as at the National Galleries of Scotland. I think that it would be unwise to try to curate her work into the show, as although she has worked in educational contexts, such as guest lecturing at the University of Edinburgh, which may suggest a willingness to be involved in exhibitions in association with students/graduates, there is little to definitively suggest that this would be the case. By removing artwork by established artists, more space can be provided to emerging artists, aligning with Strange Field’s institutional ethos of enabling emerging artists to be a part of professional contemporary exhibitions.
A body of Alexander’s work consists of arranging a personal archive of found material. Many of these items are durable naturally occurring materials, such as stones, pinecones and shells. With the artists permission I would propose that some of these pieces could be presented as tactile artworks, allowing for the audience to touch and feel the physical form of the objects. By allowing visitors to interact with pieces, in a physically engaged way, individuals with visual impairments will find an enhanced form of engagement, and more generally visitors to the exhibition will experience an advanced form of artwork interaction.
I have noted the similarities between my own art piece Monuments (2025), exhibited in my micro exhibition Mycorrhizal (Figure 2), and methods of display that Alexander has previously used (Figure 3). Alexander’s work embraces notions of deep time, with material that exists on a scale outside of human perception. By using a similar display technique to Monuments, elements of Alexander’s personal archive can be reimagined into a new commissioned piece, installed throughout the gallery space. As the exhibition design of Weird Frictions is dependent on the conceptual division of the space into the past, future, and present, by positioning components of one piece around the space, it defies the internal structure of the exhibition. The piece becomes a hyper object within the gallery, spanning across both the physical space and the structure of time that the arrangement of the artworks suggest, in the same way Monuments (2025) did in the Mycorrhizal micro exhibition. The Anthropocentric conception of time is thrown into question, as audiences notice the existence of a singular piece reoccurring throughout the time of the space.

Figure 2. Harry Mayston, Monuments (2025), Found Object, In Vitro Gallery, Summerhall, Photographed by Harry Mayston (06/04/25)

Figure 3. Charlotte Alexander (2023), Untitled, Found Object, Sourced from :https://www.instagram.com/p/CqdMYgeocdt/?img_index=1

Figure 4. Charlotte Alexander, Exhibition Map

Figure 5. Charlotte Alexander Exhibition Visualisation
Bespoke lightweight shelves will be installed on the pillars, attached with removable adhesive (which was tested in the Mycorrhizal exhibition). However, this would be strictly a recommendation for the artist and items then exhibited similar to Figure 3. Four custom plinths will be built to the artist’s specification (Figure 4). Three plinths will be standard cubes and the fourth plinth will be discussed below.
Elements of the display in the Figure 5 visualisation are partly speculative, such as the use of the three plinths specified above, to display works shown in Figures 6,7,and 8 and anticipating the display that the artist may create with the space. The details of the presentation would be reviewed with the artist before construction of plinths. As a result, this display component of the budget will be iterated in the form of a display allowance that could either be used as a curatorial fund in building plinths, or given to the artist to find alternative display stands. This would require additional curatorial approval, resulting in additional contact time that would be compensated in the budget.

Figure 6. Charlotte Alexander, Exhibition View of We Can’t Go Over It (2023), photography and found object, Sourced from: Charlotte Alexander – School of Design and Creative Arts Degree Show and Foundation Exhibition – Student Showcase 2023

Figure 7. Charlotte Alexander, Untitled (2023), Photography and found object, Sourced from: Elijah Mckenzie-Jackson (@elijahmckenziejackson) • Instagram photos and videos

Figure 8. Charlotte Alexander, Untitled (2023), pressed clay piece, sourced from: Elijah Mckenzie-Jackson (@elijahmckenziejackson) • Instagram photos and videos
The fourth plinth will have raised sides to create an effect similar to Figure 9., where objects free for interaction will be positioned. This area will be clearly labelled to make it explicitly clear that this work can be touched.
Finally, metal wires will be installed using the ceiling architecture as anchor points to create an overhead grid that does not damage the building, see Figure 10. The artist will be able to use string and fishing wire to hang objects in the space.

Figure 9. Charlotte Alexander, Untitled (2023), found object, sourced from:Elijah Mckenzie-Jackson (@elijahmckenziejackson) • Instagram photos and videos

Figure 10. Charlotte Alexander, Untitled (2023), Found object and string, Sourced from https://www.instagram.com/p/Coe8r9RICOK/?img_index=1
Siân Landau
Landau explores concepts of deep time in a more direct way, focusing on the lithic layers of rock and stone as part of the landscape as a point of excavation of histories of human and nonhuman interventions.
I propose the inclusion of the piece Compress. Originally displayed at the Edinburgh College of Art Graduation Show, it consists of 3 main components. The first is a large-scale wall mural depicting rock formations in black and white (Figure 11). The second component is a projection mapped over these formations to create an uncanny and unnatural image. Lastly sound work is developed from field recordings taken at the sites depicted in the large-scale image and projection. Landau’s process gives a voice to the land, offering a degree of ‘person’ to the rocks and stones that are depicted on the wall. Further they express an interest in the eeriness that emerges from creating agency and voice for the ancient land that resides beneath us. This eeriness supports the concept of ‘weird’ that defines part of the curatorial theme, moving on from the tangibility of Alexander’s work whilst maintaining a similar theme.
The viewer can seamlessly move from one piece to the next along this deep time thread of connection, whist being introduced to a more abstract and intangible form of art that progresses throughout the exhibition. The sound piece will be played through a speaker system, mimicking the artists original design, as well as having a similar effect to the dispersed curation of Alexander’s piece. The abstract sound piece should permeate the gallery, representing the scale of the land as a Hyper object throughout space and time. Landau notes that a component of their practice is giving a voice to the land, resisting apathy and ignorance to the world, the rocks are given agency through embodied voice. If this sound element was to be only accessible via headphones, then the audience members would have the choice to participate or reject engagement. By playing the sound piece out loud the audience cannot ignore the voice of the land. The added effect is an advanced form of narrative friction as the concepts present in this piece will affect the perception of other pieces as the audience engages with them. The sound will become part of the architecture in forming the multimodal sensory exhibition experience (as I discussed in my week 5 blog on multisensory spaces). Finally, Landau is positioned in an alcove space, which offers a natural darkness to this area of the gallery which will aid in the projected presentation, as well as emphasising the sense of eeriness within the piece (Figures 12 and 13).

Figure 11. Sian Landau, Compress (2024), Photography wall mural, Sourced from:[DE]COMPRESS — Siân Landau

Figure 12. Sian Landau Exhibition Visualisation

Figure 13. Sian Landau Exhibition Map
Four speakers will be directed towards the central space where seating will be arranged. Visitors will experience a multidirectional sound experience while in the alcove area of the gallery. With no overhead options to install a projector or walls that can be altered to add a shelf, the projector will be installed low on the floor, close to the mural wall to prevent projection interruption, (if the projector was installed further away from the wall, then visitors may inadvertently move in front of the projector’s light). To avoid distortion the HD NEC Projector will be loaned from the ECA Book it Service, having keystone distortion correction capabilities the projector can be installed closer to the wall without affecting the display qualities.
Section 2: Future
Molly Wickett.
Wickett deals with ecological post-apocalyptic futures, providing an important perspective of climate crisis and ecological time from a Queer, Disabled, Feminist perspective. Contrasting themes of grief and hope Wickett combines notions of utopia and dystopia by contrasting the charred remains of an old wooden world with new growth of fungal sculptures. If I Listen Closely, I Can Hear the Sky Falling Too (2023) (Figure 14) is comprised of many parts, and offers itself for a flexible arrangement in space. I have observed how components of this piece have varied between the Edinburgh College of Art Graduate Show (Wickett, 2023) (Figure 14.) and the In Another Life! Exhibition (Wickett, 2025) (Figure 15.) also hosted at Strange Field in late February 2024. The arrangement of the piece in the exhibition space will reflect the conceptual themes of hope and grief, emerging from the eeriness of the back of the gallery, as defined by Landau, and extending towards the windows at the front of the gallery reinforcing the dual nature of this work, whilst offering a point of cohesion to lead the viewer into the conceptual future of the space without feeling disjointed or disconnected from the overall gallery experience. In Wickett’s previous exhibition at Strange Field in Another Life! glow in the dark small scale sculptural pieces have been placed on the back wall (Figure 16.), which would be reinstalled for Weird Frictions exhibition.

Figure 14. Molly Wickett,If I Listen Closely, I Can Hear the Sky Falling Too (2023),Elm, oxidised steel, salt, soil, sand, ash, steel, aluminium, and lichens, Sourced from: Molly Wickett | Edinburgh College of Art Graduate Show 2023

Figure 15. Molly Wickett, In Another Life! , Elm ash and chains, Sourced from: In Another Life! – MOLLY WICKETT

Figure 16. Molly Wickett, Glowing Fungi (2025), Steel and uv florescent powder, sourced from:In Another Life! – MOLLY WICKETT

Figure 17. Molly Wickett Exhibition Map

Figure 18. Molly Wickett Exhibition Visualisation
Repeating elements of display observed in Figure 15, wooden pieces will be displayed, suspended by chains from the ceiling architecture. Individual pieces shall be arranged on the floor, as well as the charred logs that form Figure 14 If I Listen Closely, I can Her the Sky Falling Too, spanning from the back of the gallery space toward the window (Figures 17 and 18).
Aria Dudhia
Aria Dudhia is a recent graduate from De Montford University in Leicestershire. She sites careful attention to detail and an intimate trace of the act of touch at the heart of her process. Working within a methodology of sustainability, she seeks ways of reducing waste whilst developing outcomes that are intended to last.
Working with ceramic, she develops shapes that are organic and natural, she then carves into the surface with excavation tools to remove clay creating swirling and winding patterns that seem to dance over the surface once fired. Over multiple iterations of form, she uses glazing and surface techniques and constructs a fake history upon the surface of the clay, shattering some whilst others maintain intact. The display resembles an Archaeological Museum display. Titled Future Fossils (Figure 19) Dudhia presents her sculptures from the lens of the future, treating the present as the past. The care imbued in the construction and adornment of the surface becomes fossilised. Dudhia asks the viewer to consider how their actions become preserved into the future, whilst also challenging notions of capitalist consumerism, as we consider the reality that our plastic waste will outlive us.

Figure 19. Aria Dudhia, Future Fossils, Ceramic, sourced from: Aria Dudhia (@ariadudhia.design) • Instagram photos and videos

Figure 20. Aria Dudhia Exhibition Map

Figure 21. Aria Dudhia Exhibition Visualisation

Figure 22. Aria Dudhia Exhibition Visualisation
At its core, this work creates a hopeful future, one in which there is a civilisation that has prolonged to the extent that our present is the past and remembered as a fossil of care rather than a ghost of pollution. As a result, this piece will be located by a gallery widow, making a distinct separation from the eerie dark space in the gallery (Figure 20). This piece demands a relatively traditional gallery arrangement, as a result white plinths will be used to mimic the appearance of an archaeological museum display (Figures 21 and 22). Additionally, the aesthetic differences between Future Fossils round and structurally smooth shape which suggests prioritisation of care in future society, and Wickett’s dirty and dark forms in If I If I Listen Closely, I can Her the Sky Falling Too , suggesting a post-human reality, create an opposing and discursive comparison. This leads the viewer to reappraise what their own actions are, and how they may fossilise into the future. This introspection to present day actions segues the gallery visitor to the form of embodied present which is the focus of the third section.
Section 3: Present.
Paola Bascón
A multidisciplinary artist working between Berlin and La Paz, Bascon is a 2024 graduate from the Goldsmiths University of London Art and Ecology master’s program. Her practice focuses on subverting modern and colonial narratives through somatic and intimate processes to bring participants closer to ecological forces, highlighting the connections between humans and non-humans.
I propose the installation of her piece Lithic Encounters (Figure 23). Originally taking the form of a workshop and a public programme, within the Strange Field space this piece would take on the form of an instructional audio guide focusing on sensory experiences within the space. Lithic Encounters instructs participants to connect with stones and mountains through their bodies, guiding the listener though sensory tasks of feeling and understanding the forms of naturally occurring geological phenomena. The instructional tasks are supplemented with stories about natural formations derived from both information and folklore. The earth is established as a non-human person with a history and form, that has been exploited as a resource. The visitor establishes a holistic connection between themselves and the world through embodied processes of listening and feeling.
Bascón does not have a convention for display, so this arrangement is based entirely on what I believe best represents the purpose of the piece within the space.

Figure 23. Paola Bascón, Lithic Encounters (2024), audio interactive piece, Sourced from: Lithic Encounters — Paola Bascón

Figure 24. Paola Bascón Exhibition Map

Figure 25. Paola Bascón Exhibition Visualisation.

Figure 26. Paola Bascón Exhibition Visualisation.
Located on the far side of the gallery from the entrance, the piece will be situated in a darker space, opposite the work of Landau (Figure 24). Stones and other lithic materials will be positioned on plinths with raised walls (Figure 25), like Alexander’s archival work. By using the same form of plinth for both pieces I anticipate that the visitors will understand this as a motif that signifies that they are able to touch the art in these spaces. Unlike Landau’s Compress I believe that this is an intimate piece that focuses on individual meaning making, as a result the plinths will have hooks with headphones attached (Figure 26). Additionally, stage lights will be used to ensure that the plinths and material they hold are appropriately lit.
The embodying tasks of listening, sight and touch, will physically situate the participant in the present, allowing them intimate space to consider their relationship with non-human materials as they form meaning through tactile interaction, and the colonial and capitalist infrastructures that we are all a part of, which Bascón’s alludes to in audio instructions.
Layla Knox:
Layla Knox is an artist studying at the Edinburgh College of Art, who I curated as part of the In Vitro gallery exhibition Mycorrhizal. I believe that her work can be applied to this exhibition with the same values that I previously established in my week 10 blog post, where I discussed how, like Dudhia, her work can be understood as an artifact of caring acts, where nature and ecology is treated with an enhanced reverence.
However, unlike Dudhia, Knox’s work is expressed to be a process in the present, made clear from her use of recently found objects, and the reference to contemporary issues of infrastructure and capitalist extraction with the use of negative space and breezeblocks (Figure 27.)

Figure 27. Layla Knox, Chapel Painting II (2025) Mounted on Breezeblock, image provided courtesy of the artist.

Figure 28. Layla Knox Exhibition Map

Figure 29, Layla Knox Exhibition Visualisation
As the last piece that the viewer interacts with before leaving the gallery, four plinths will be positioned to frame the exit, with two in partial light, and two in partial darkness. This reflects the process of finding action within the contrasting themes of hope and fear that emerge throughout the exhibition. Each plinth holds a version of Chapel Painting I (Figures 28 and 29).
The viewer will be left considering their own reverence and appreciation for the natural world, as well as their role within the contemporary forces of capitalism and climate change.
Bibliography
- Alexander, C. (2023). Charlotte Alexander – School of Design and Creative Arts Degree Show and Foundation Exhibition – Student Showcase 2023. [online] Available at: https://sdcashow2023.lboro.ac.uk/student/charlotte-alexander/ [Accessed 14 Apr. 2025].
- Bascon, P. (2023). Lithic Encounters — Paola Bascón. [online] Available at: https://paolabascon.com/lithic-encounters [Accessed 15 Apr. 2025].
- Bascon, P. (2020). Paola Bascón – Umbau. [online] Available at: https://umbau.hfg-karlsruhe.de/authors/paola-bascon [Accessed 15 Apr. 2025].
- Dudhia, A. (2024) Future Fossils [online] Available at: https://www.instagram.com/p/C8bp3y8MGf_/?img_index=1 [Accessed 15 Apr. 2025].
- Falmouth University (2023). Undergraduate Fine Art at Falmouth University. [online] Falmouth University. Available at: https://www.falmouth.ac.uk/study/undergraduate/fine-art. [Accessed 15 Apr. 2025].
- Knox, L. (2021). Layla Knox (@lknox_art) • Instagram photos and videos. [online] Available at: https://www.instagram.com/lknox_art/ [Accessed 15 Apr. 2025].
- Landau, S. (2024). Siân Landau | Edinburgh College of Art Graduate Show 2024. [online] Available at: https://www.graduateshow.eca.ed.ac.uk/portfolio/sian-landau [Accessed 14 Apr. 2025].
- Landau, S. (2024). Siân Landau. [online] Siân Landau. Available at: https://sianlandau.com/compress-decompress [Accessed 14 Apr. 2025].
- Wickett, M. (2023). Molly Wickett | Edinburgh College of Art Graduate Show 2023. [online] Available at: https://www.2023.graduateshow.eca.ed.ac.uk/portfolio/molly-wickett [Accessed 14 Apr. 2025].
- Wickett, M. (2025). In Another Life![online] Available at: https://mollywickett.co.uk/inanotherlife/ [Accessed 14 Apr. 2025].

